Дом, проект №214
Дом, проект №214
Площадь теплого контура
277.7 м2
Жилая площадь
238 м2
Размер дома
11x15
Спальни
6
Санузлы
3
Дополнительно
Терраса
Дом, проект №214
Дом, проект №214
Дом, проект №214
Планировка
План первого этажа
Дом, проект №214 - планировка
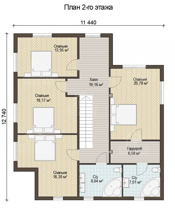
План второго этажа
Дом, проект №214 - планировка
Комплектации домов
Каркас - Теплый контур
от 17 384 020 ₽
Стоимость без учёта крыльца, терассы, балкона, патио, навеса для автомобиля.
Проект

Архитектурный проект

Фундамент

Железобетонные забивные сваи 150х150х3000 мм. Составной ростверк из сухой строганой доски 45х145мм (3шт). Обработка огнебиозащитным составом

Несущие стены и перегородки

Стеновые панели изготовлены на заводе из сухого (12-18%) строганного бруса сечением 145х45мм,с наружной стороны зашиты ОСП плитой 9 мм. Весь силовой каркас и доборные элементы обработаны огнебиозащитным составом. Высота стеновых панелей 2,7 м. Утепление наружных стен 200 мм (150 мм + 50 мм перекрестно), межкомнатных перегородок 100 мм. Пароизоляция и ветро-гидрозащита

Перекрытия

Комплект параллельно-поясных ферм (пол 1-го этажа) изготовлен на заводе из сухого (12-18%) строганного бруса ,сечением 145х45мм, соединенного металлозубчатыми пластинами MITEK. Весь силовой каркас и доборные элементы обработаны огнебиозащитным составом. Утепление перекрытий 1-го этажа 250 мм базальтовым утеплителем, 2-го этажа 150 мм. Пароизоляция и ветро-гидрозащита

Кровля

Комплект ферм стропильной системы изготовлен на заводе из сухого (12-18%) строганного бруса, сечением 145*45 и 195х45мм согласно конструкторскому решению, соединенного металлозубчатыми пластинами MITEK. Весь силовой каркас и доборные элементы обработаны огнебиозащитным составом. Утепление потолка 2-го этажа 200 мм базальтовым утеплителем. Чердак холодный. Пароизоляция и ветро-гидрозащита. Обрешетка, контробрешетка. Металлочерепица толщиной 0,5 мм

Наружная отделка

Отделка фасада на выбор: фасадные панели Альта-профиль, Docke, металлосайдинг Grand Line, фасадная плитка Hauberk, Свесы кровли- виниловые перфорированные софитные панели. Отделка цоколя панелями

Окна и двери

Окна-Rehau Grazio 70 мм с двухкамерными стеклопакетами. Отделка оконных наружных откосов, монтаж отливов. Дверь входная с терморазрывом

Внутренние коммуникации

Не входит в комплектацию

Внутренняя отделка

Не входит в комплектацию

Дополнительные элементы

Не входит в комплектацию

Организация строительной площадки

Доставка/вывоз строительной бытовки для проживания рабочих, биотуалета. Вывоз строительного мусора

Стоимость строительства за м2
62 600 ₽
Каркас - Комфорт
от 22 882 480 ₽
Стоимость без учёта крыльца, терассы, балкона, патио, навеса для автомобиля.
Проект

Архитектурный проект

Фундамент

Железобетонные забивные сваи 150х150х3000 мм. Составной ростверк из сухой строганой доски 45х145мм (3шт). Обработка огнебиозащитным составом

Несущие стены и перегородки

Стеновые панели изготовлены на заводе из сухого (12-18%) строганного бруса сечением 145х45мм,с наружной стороны зашиты ОСП плитой 9 мм. Весь силовой каркас и доборные элементы обработаны огнебиозащитным составом. Высота стеновых панелей 2,7 м. Утепление наружных стен 200 мм (150 мм + 50 мм перекрестно), межкомнатных перегородок 100 мм. Пароизоляция и ветро-гидрозащита, проклейка швов скотчем

Перекрытия

Комплект параллельно-поясных ферм (пол 1-го этажа) изготовлен на заводе из сухого (12-18%) строганного бруса ,сечением 145х45мм, соединенного металлозубчатыми пластинами MITEK. Весь силовой каркас и доборные элементы обработаны огнебиозащитным составом. Утепление перекрытий 1-го этажа 250 мм базальтовым утеплителем, 2-го этажа 150 мм. Пароизоляция и ветро-гидрозащита, проклейка швов скотчем

Кровля

Комплект ферм стропильной системы изготовлен на заводе из сухого (12-18%) строганного бруса, сечением 145*45 и 195х45мм согласно конструкторскому решению, соединенного металлозубчатыми пластинами MITEK. Весь силовой каркас и доборные элементы обработаны огнебиозащитным составом. Утепление потолка 2-го этажа 200 мм базальтовым утеплителем. Чердак холодный. Пароизоляция и ветро-гидрозащита. Обрешетка, контробрешетка. Металлочерепица толщиной 0,5 мм

Наружная отделка

Отделка фасада на выбор: фасадные панели Альта-профиль, Docke, металлосайдинг Grand Line, фасадная плитка Hauberk, Свесы кровли- виниловые перфорированные софитные панели. Отделка цоколя панелями

Окна и двери

Окна — Rehau Grazio 70 мм с двухкамерными стеклопакетами. Отделка оконных наружных откосов, монтаж отливов. Дверь входная с терморазрывом

Внутренние коммуникации

Устройство канализации: прокладка труб ПВХ диаметром 110 и 50 мм согласно план-схеме.

Устройство вентиляции во «влажных зонах»: прокладка труб ПВХ , монтаж вентгрибков на кровле.

Устройство водоснабжения: прокладка труб из сшитого полиэтилена, монтаж водорозеток. Монтаж накопительного бойлера с обвязкой.

Устройство скрытой электрики: разводка кабеля по дому в гофре н/г (3*2,5 розетки,3*1,5 освещение), установка подрозетников. Сборка щитка с автоматами.

Устройство отопления: Подведение электрического кабеля к отопительным приборам, монтаж конвекторов

Внутренняя отделка

Монтаж по стенам ОСП 9 мм, ГКЛ 12,5 мм. В сан. узлах по стенам ВГКЛ, пол ЦСП

Дополнительные элементы

Водосточная система. Снегозадержатели. Чердачный утепленный люк FAKRO. Сетка от грызунов

Организация строительной площадки

Доставка/вывоз строительной бытовки для проживания рабочих, биотуалета. Вывоз строительного мусора

Стоимость строительства за м2
82 400 ₽
Каркас - White Box
Цена по запросу
Стоимость без учёта крыльца, терассы, балкона, патио, навеса для автомобиля.
Проект

Архитектурный проект

Фундамент

Железобетонные забивные сваи 150х150х3000 мм. Составной ростверк из сухой строганой доски 45х145мм (3шт). Обработка огнебиозащитным составом

Несущие стены и перегородки

Стеновые панели изготовлены на заводе из сухого (12-18%) строганного бруса сечением 145х45мм,с наружной стороны зашиты ОСП плитой 9 мм. Весь силовой каркас и доборные элементы обработаны огнебиозащитным составом. Высота стеновых панелей 2,7 м. Утепление наружных стен 200 мм (150 мм + 50 мм перекрестно), межкомнатных перегородок 100 мм. Пароизоляция и ветро-гидрозащита, проклейка швов скотчем

Перекрытия

Комплект параллельно-поясных ферм (пол 1-го этажа) изготовлен на заводе из сухого (12-18%) строганного бруса ,сечением 145х45мм, соединенного металлозубчатыми пластинами MITEK. Весь силовой каркас и доборные элементы обработаны огнебиозащитным составом. Утепление перекрытий 1-го этажа 250 мм базальтовым утеплителем, 2-го этажа 150 мм. Пароизоляция и ветро-гидрозащита, проклейка швов скотчем

Кровля

Комплект ферм стропильной системы изготовлен на заводе из сухого (12-18%) строганного бруса, сечением 145*45 и 195х45мм согласно конструкторскому решению, соединенного металлозубчатыми пластинами MITEK. Весь силовой каркас и доборные элементы обработаны огнебиозащитным составом. Утепление потолка 2-го этажа 200 мм базальтовым утеплителем. Чердак холодный. Пароизоляция и ветро-гидрозащита. Обрешетка, контробрешетка. Металлочерепица толщиной 0,5 мм

Наружная отделка

Отделка фасада на выбор: фасадные панели Альта-профиль, Docke, металлосайдинг Grand Line, фасадная плитка Hauberk, Свесы кровли- виниловые перфорированные софитные панели. Отделка цоколя панелями

Окна и двери

Окна — Rehau Grazio 70 мм с двухкамерными стеклопакетами. Отделка оконных наружных откосов, монтаж отливов. Дверь входная с терморазрывом

Внутренние коммуникации

Устройство канализации: прокладка труб ПВХ диаметром 110 и 50 мм согласно план-схеме.

Устройство вентиляции во «влажных зонах»: прокладка труб ПВХ , монтаж вентгрибков.

Устройство водоснабжения: прокладка труб из сшитого полиэтилена, монтаж водорозеток. Монтаж бойлера косвенного нагрева с обвязкой.

Устройство скрытой электрики: разводка кабеля по дому в гофре н/г (3*2,5 розетки,3*1,5 освещение), установка подрозетников, розеток и выключателей. Сборка щитка с автоматами.

Устройство отопления: Монтаж водяного теплого пола на 1-м этаже: укладка теплоизоляционных матов, прокладка труб из сшитого полиэтилена, устройство коллекторной группы, полусухой бетонной стяжки, монтаж радиаторов на втором этаже (при наличии), установка котла газового или электрического, обвязка котельной, пуско-наладочные работы

Внутренняя отделка

Монтаж по стенам ОСП 9 мм, ГКЛ 12,5 мм, шпатлевка стен в 2 слоя под обои (или монтаж имитации бруса с заводской покраской).

В сан. узлах по стенам ВГКЛ, пол ЦСП.

Монтаж ПВХ откосов и подоконников

Дополнительные элементы

Водосточная система. Снегозадержатели. Чердачный утепленный люк FAKRO . Сетка от грызунов

Организация строительной площадки

Доставка/вывоз строительной бытовки для проживания рабочих, биотуалета. Вывоз строительного мусора

Стоимость строительства за м2
Цена по запросу
Видео наших домов
Авторские видео домов
Канадская технология Mitek
Канадская технология Mitek: компьютерное проектирование и заводское изготовление каркасных конструкций и деревянных стропильных ферм, соединённых в узлах металлическими зубчатыми пластинами. Перекрытия, стеновые панели и стропильные фермы выполнены из сухой строганой древесины и обработаны огнебиозащитным составом в заводских условиях.
Стеновые панели MITEK
  • Быстрый монтаж
  • Удобство разводки внутренних коммуникаций
  • Двутавровое усиление оконных проемов
  • Усиленная нижняя и верхняя обвязка
  • Монтаж шип-паз
  • Теплый угол
Перекрытия-параллельно - поясные фермы MITEK
  • Перекрывают пролёты до 9 метров без дополнительной опоры. Отсутствует палубность
  • Детали ферм скреплены между собой металлозубчатыми пластинами
  • Выдерживают нагрузку до 1 200 кг на метр
Стропильные фермы MITEK
  • Нагрузки просчитаны с помощью программы Mitek
  • Изготавливаются с высокой степенью точности на заводе
  • Легко адаптируются к разным архитектурным решениям
Внутренняя и внешняя отделка
Имитация бруса
Имитация бруса
Отделочный материал в виде тонких строганых досок с выраженными скошенными гранями (фасками) и соединением «шип-паз». Универсальный материал для внутренней отделки каркасных домов в эко-стиле, отражает фактуру профилированного бруса.
Гипсокартон
Предначен для отделки стен в помещениях с сухим и нормальным влажностным режимом, позволяет получить ровные стены для нанесения шпатлевки и последующей покраски. ГКЛ состоит из гипсового сердечника, оклеенного с двух сторон прессованным картоном
Металлосайдинг
Современный материал для фасадной отделки дома, представляющий собой профилированные панели из оцинкованной стали с полимерным покрытием. Имеет широкий ассортимент профилей в виде вертикальных и горизонтальных панелей, имитирующих доску, бревно или брус.
Фасадные панели
Прямоугольные плиты из полипропилена,изготовленные методом литья под давлением, усиленные ребрами жесткости, используются для внешней отделки дома. Их внешний вид имитирует фактуру и цвета натуральных материалов, например камень, кирпич, песчаник или сланец.
Силикатно-силиконовая штукатурка
Предназначена для декоративной фасадной отделки каменных и каркасных домов. Обладает высокой эластичностью, не растрескивается, не осыпается, влагостойкая и паропроницаемая. Образует покрытие в виде плотно уложенной каменной крошки.Самоочищающаяся поверхность снижает загрязнение фасада, а широкий выбор оттенков позволяет создать стильный экстерьер.
Вам доступна ипотека!
Живите сейчас, а платите потом!
  • Участок и дом в одну ипотеку. Ставка от 6%
  • Первоначальный взнос от 20,1%
  • Работаем с эскроу счетами.
  • Персональный менеджер.
  • Бесплатное сопровождение.
  • Высокий процент одобрения от известных банков-партнеров и быстрый выход на сделку.
Получить ипотеку
  • Росбанк
  • Газпромбанк
  • АльфаБанк
  • ВТБ
  • Дом.РФ Банк
  • Сбербанк
Индивидуальное
проектирование
Архитекторы компании «Белхаус» создадут для вас индивидуальный проект согласно вашим пожеланиям.
Записаться к архитектору
Записаться на экскурсию на строительную площадку
Заполните форму, представленную справа и мы свяжемся с вами для согласования времени посещения строительной площадки
Получить расчет стоимости + каталог проектов + подарки
Записаться к архитектору
Оставьте заявку и наш архитектор свяжется с вами для обсуждения вашего проекта
Оставьте заявку
Оставьте ваши контактные данные и мы свяжемся с вами в ближайшее время