14-й км МКАД, г. Котельники, Дзержинское ш., 7вл7, ВЦ «Малоэтажная страна Белая Дача», дом №22
МО, 84-й км МКАД, г. Мытищи, пос. Вёшки, ТПЗ Алтуфьево, 3В, ВЦ «Малоэтажная страна Алтуфьево», дом №18
54-й км МКАД, д. Марфино, ВЦ «Малоэтажная страна Марфино», дом №7
+7 (495) 222-20-62
Контактные телефоны:
+7 (495) 222-20-62
+7 985 211-00-24
+7 915 222-20-27
E-mail:
info@belhouse.net
Мессенджеры:
Написать в TG
Написать в WA
Написать в Макс
Перейти в контакты →
Заказать обратный звонок
Ежедневно: 10:00-19:00
Проекты
Каркасные дома
Дома из газобетона
Цены
Портфолио
Наши работы
Строим сейчас
Технологии
Каркасная технология MiTek
Газобетон
Домокомплект
Стропильные системы
Наше производство
Используемые материалы
Услуги
Индивидуальное проектирование
Ипотека
Экскурсии
Информация
О нас
Вопрос / Ответ
Видео
Отзывы
Благодарности
Блог
Акции
Калькулятор
Контакты
Заказать обратный звонок
Заказать обратный звонок
×
Главная
Наши работы
Клинский район
Клинский район
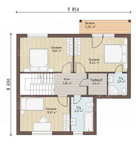
Площадь теплого контура
175 м
2
Жилая площадь
141,6 м
2
Размер дома
10x12
Спальни
3
Санузлы
2
Дополнительно
Терраса, Гараж, Балкон, Крыльцо
Хочу такой дом
Купить в ипотеку
Фото со стройки
Обзор дома
×
×
×
×
Получить расчет стоимости + каталог проектов + подарки
Я принимаю условия
Согласия на обработку персональных данных
и ознакомлен(-на) с
Политикой конфиденциальности
Записаться к архитектору
Оставьте заявку и наш архитектор свяжется с вами для обсуждения вашего проекта
Я принимаю условия
Согласия на обработку персональных данных
и ознакомлен(-на) с
Политикой конфиденциальности
Оставьте заявку
Оставьте ваши контактные данные и мы свяжемся с вами в ближайшее время
Я принимаю условия
Согласия на обработку персональных данных
и ознакомлен(-на) с
Политикой конфиденциальности