Дом из газобетона, проект №261к

Дом из газобетона, проект №261к
Площадь теплого контура
153.5 м2
Жилая площадь
123,7 м2
Размер дома
9x9
Спальни
2
Санузлы
2
Дополнительно
Терраса
Дом из газобетона, проект №261к
Дом из газобетона, проект №261к
Дом из газобетона, проект №261к
Планировка
1 этаж
Дом из газобетона, проект №261к - планировка
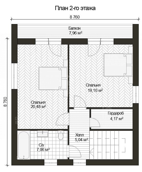
2 этаж
Дом из газобетона, проект №261к - планировка
Комплектации домов
Газобетон - Теплый контур
от 9 946 800 ₽
Стоимость без учёта крыльца, терассы, балкона, патио, навеса для автомобиля.
Проект

Архитектурный проект

Фундамент

Монолитная фундаментная плита 300 мм (бетон М-300) с двуслойным армированием арматурой 12 мм, утепление пенополистиролом

Несущие стены и перегородки

Кладка наружных стен из газобетонного блока Bonolit 400 мм, внутренних несущих стен 250 мм, внутренних перегородок из 100 мм, армирование каждый 4-й ряд. Устройство армопояса из бетона М300 с применением арматуры диаметром 12 мм

Перекрытия

Монтаж железобетонных плит перекрытия 220 мм

Кровля

Комплект ферм стропильной системы изготовлен на заводе из сухого (12-18%) строганного бруса, сечением 145*45 и 195х45мм согласно конструкторскому решению, соединенного металлозубчатыми пластинами MITEK. Весь силовой каркас и доборные элементы обработаны огнебиозащитным составом. Утепление потолка 2-го этажа 200 мм базальтовым утеплителем. Чердак холодный. Пароизоляция и ветро-гидрозащита. Обрешетка, контробрешетка. Металлочерепица толщиной 0,5 мм

Наружная отделка

Не входит в комплектацию

Окна и двери

Окна — Rehau Grazio 70 мм с двухкамерными стеклопакетами. Дверь входная с терморазрывом

Внутренние коммуникации

Не входит в комплектацию

Внутренняя отделка

Не входит в комплектацию

Дополнительные элементы

Не входит в комплектацию

Организация строительной площадки

Доставка/вывоз строительной бытовки для проживания рабочих, биотуалета. Вывоз строительного мусора

Стоимость строительства за м2
64 800 ₽
Газобетон - White Box
Цена по запросу ₽
Стоимость без учёта крыльца, терассы, балкона, патио, навеса для автомобиля.
Проект

Архитектурный проект

Фундамент

Монолитная фундаментная плита 300 мм (бетон М-300) с двуслойным армированием арматурой 12 мм, утепление пенополистиролом

Несущие стены и перегородки

Кладка наружных стен из газобетонного блока Bonolit 400 мм, внутренних несущих стен 250 мм, внутренних перегородок из 100 мм, армирование каждый 4-й ряд. Устройство армопояса из бетона М300 с применением арматуры диаметром 12 мм

Перекрытия

Монтаж железобетонных плит перекрытия 220 мм

Кровля

Комплект ферм стропильной системы изготовлен на заводе из сухого (12-18%) строганного бруса, сечением 145*45 и 195х45мм согласно конструкторскому решению, соединенного металлозубчатыми пластинами MITEK. Весь силовой каркас и доборные элементы обработаны огнебиозащитным составом. Утепление потолка 2-го этажа 200 мм базальтовым утеплителем. Чердак холодный. Пароизоляция и ветро-гидрозащита. Обрешетка, контробрешетка. Металлочерепица толщиной 0,5 мм

Наружная отделка

Декоративная силикатно-силиконовая штукатурка Ceresit. Свесы кровли- виниловые перфорированные софитные панели

Окна и двери

Окна — Rehau Grazio 70 мм с двухкамерными стеклопакетами. Установка отливов. Дверь входная с терморазрывом

Внутренние коммуникации

Устройство канализации: прокладка труб ПВХ диаметром 110 и 50 мм согласно план-схеме.

Устройство вентиляции во «влажных зонах»: прокладка труб ПВХ , монтаж вентгрибков.

Устройство водоснабжения: прокладка труб из сшитого полиэтилена, монтаж водорозеток. Монтаж бойлера косвенного нагрева с обвязкой.

Устройство скрытой электрики: разводка кабеля по дому в гофре н/г (3*2,5 розетки,3*1,5 освещение), установка подрозетников, розеток и выключателей. Сборка щитка с автоматами.

Устройство отопления: Монтаж водяного теплого пола на 1-м этаже: укладка теплоизоляционных матов, прокладка труб из сшитого полиэтилена, устройство коллекторной группы, полусухой бетонной стяжки, монтаж радиаторов на втором этаже (при наличии), установка котла газового или электрического, обвязка котельной, пуско-наладочные работы

Внутренняя отделка

Нанесение гипсовой штукатурки по маякам, шпатлевка стен в 2 слоя «под обои»

Дополнительные элементы

Водосточная система. Снегозадержатели. Чердачный утепленный люк FAKRO

Организация строительной площадки

Доставка/вывоз строительной бытовки для проживания рабочих, биотуалета. Вывоз строительного мусора

Стоимость строительства за м2
Цена по запросу
Видео наших домов
Авторские видео домов
Канадская технология Mitek
Канадская технология Mitek: компьютерное проектирование и заводское изготовление каркасных конструкций и деревянных стропильных ферм, соединённых в узлах металлическими зубчатыми пластинами. Перекрытия, стеновые панели и стропильные фермы выполнены из сухой строганой древесины и обработаны огнебиозащитным составом в заводских условиях.
Стеновые панели MITEK
  • Быстрый монтаж
  • Удобство разводки внутренних коммуникаций
  • Двутавровое усиление оконных проемов
  • Усиленная нижняя и верхняя обвязка
  • Монтаж шип-паз
  • Теплый угол
Перекрытия-параллельно - поясные фермы MITEK
  • Перекрывают пролёты до 9 метров без дополнительной опоры. Отсутствует палубность
  • Детали ферм скреплены между собой металлозубчатыми пластинами
  • Выдерживают нагрузку до 1 200 кг на метр
Стропильные фермы MITEK
  • Нагрузки просчитаны с помощью программы Mitek
  • Изготавливаются с высокой степенью точности на заводе
  • Легко адаптируются к разным архитектурным решениям
Внутренняя и внешняя отделка
Имитация бруса
Имитация бруса
Отделочный материал в виде тонких строганых досок с выраженными скошенными гранями (фасками) и соединением «шип-паз». Универсальный материал для внутренней отделки каркасных домов в эко-стиле, отражает фактуру профилированного бруса.
Гипсокартон
Предначен для отделки стен в помещениях с сухим и нормальным влажностным режимом, позволяет получить ровные стены для нанесения шпатлевки и последующей покраски. ГКЛ состоит из гипсового сердечника, оклеенного с двух сторон прессованным картоном
Металлосайдинг
Современный материал для фасадной отделки дома, представляющий собой профилированные панели из оцинкованной стали с полимерным покрытием. Имеет широкий ассортимент профилей в виде вертикальных и горизонтальных панелей, имитирующих доску, бревно или брус.
Фасадные панели
Прямоугольные плиты из полипропилена,изготовленные методом литья под давлением, усиленные ребрами жесткости, используются для внешней отделки дома. Их внешний вид имитирует фактуру и цвета натуральных материалов, например камень, кирпич, песчаник или сланец.
Силикатно-силиконовая штукатурка
Предназначена для декоративной фасадной отделки каменных и каркасных домов. Обладает высокой эластичностью, не растрескивается, не осыпается, влагостойкая и паропроницаемая. Образует покрытие в виде плотно уложенной каменной крошки.Самоочищающаяся поверхность снижает загрязнение фасада, а широкий выбор оттенков позволяет создать стильный экстерьер.
Вам доступна ипотека!
Живите сейчас, а платите потом!
  • Участок и дом в одну ипотеку. Ставка от 6%
  • Первоначальный взнос от 20,1%
  • Работаем с эскроу счетами.
  • Персональный менеджер.
  • Бесплатное сопровождение.
  • Высокий процент одобрения от известных банков-партнеров и быстрый выход на сделку.
Получить ипотеку
  • Росбанк
  • Газпромбанк
  • АльфаБанк
  • ВТБ
  • Дом.РФ Банк
  • Сбербанк
Индивидуальное
проектирование
Архитекторы компании «Белхаус» создадут для вас индивидуальный проект согласно вашим пожеланиям.
Записаться к архитектору
Записаться на экскурсию на строительную площадку
Заполните форму, представленную справа и мы свяжемся с вами для согласования времени посещения строительной площадки
Получить расчет стоимости + каталог проектов + подарки
Записаться к архитектору
Оставьте заявку и наш архитектор свяжется с вами для обсуждения вашего проекта
Оставьте заявку
Оставьте ваши контактные данные и мы свяжемся с вами в ближайшее время