Top.Mail.Ru
20+ лет
на рынке СНГ
Собственное фабричное производство
Решим вопрос с ипотекой
Лояльные цены
от 29.000 ₽/м

Москва

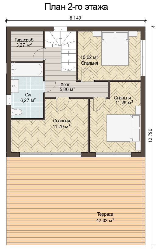
Общая площадь 144.7 м2
Комнаты 5
Санузлы 4
Санузлы 2
Фотографии со стройки

Дом построен в Москве

Представляем вам наш новый проект: стильный двухэтажный дом площадью 141 кв. м в прекрасном районе Лазенки г. Москва. Этот дом – воплощение комфорта и надежности. Мы уделяли внимание каждой детали, чтобы создать атмосферу уюта и гармонии. Дом разработан с учетом вашего образа жизни, предоставляя функциональное и комфортабельное пространство для вашей семьи. Благодарим за выбор "Белхаус" – вашего надежного партнера в строительстве домов, где сбываются мечты о идеальном жилье в районе Лазенки.

Объект сдан в июле 2022 года.

Белхаус на карте Котельников — Яндекс Карты
Как мы работаем?
1
Оформляете заявку
2
Предлагаем варианты
3
Составляем смету
4
Заключаем договор
5
Вносите предоплату
6
Строим дом под ключ
20+ лет
на рынке СНГ
Собственное фабричное производство
Решим вопрос с ипотекой
Лояльные цены
от 29.000 ₽/м
{block_personal_project_popup}
ежедневно | 10:00 — 19:00
14-й км МКАД, Мега «Белая Дача», ВЦ «Малоэтажная страна» дом №22. Компания «Belhouse»
МО, г.о. Мытищи, пос. Вёшки, ТПЗ Алтуфьево, 3В ВЦ «Малоэтажная страна» дом №18
Обратный звонок
Напишите нам
Хотите такой дом?

Оставьте свои данные, и мы с вами свяжемся.

Хотите купить такой дом в кредит?

Оставьте свои данные, и мы с вами свяжемся.

Подберите свой проект