Top.Mail.Ru
20+ лет
на рынке СНГ
Собственное фабричное производство
Решим вопрос с ипотекой
Лояльные цены
от 29.000 ₽/м

Каркасный барнхаус, проект №299

Главная Каркасные дома Каркасные дома Каркасный барнхаус, проект №299
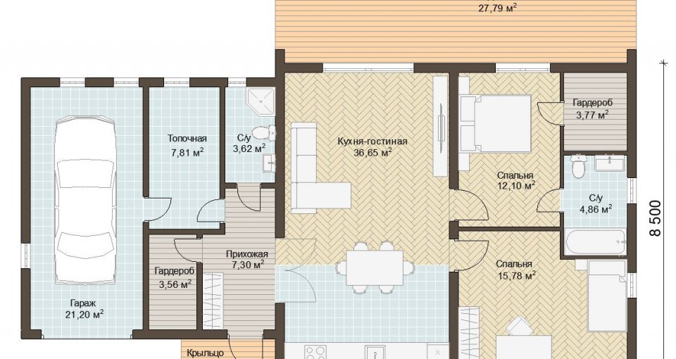
Площадь теплого контура 131.6 м2
Жилая площадь 116.5 м2
Размер дома 8x16 м
Комнаты 2
Спальни 2
Санузлы 2
Дополнительно Гараж
Стоимость строительства от 7 488 040 ₽ В зависимости от комплектации
Планировка
Кухня-гостиная 36.20 м2
Спальня 12.10 м2
Спальня 15.78 м2
Гардероб 3.77 м2
Санузел 4.86 м2
Санузел 3.62 м2
Тамбур 7.78 м2
Хоз.помещение 6.75 м2
Гараж 25.63 м2
Терраса 27.79 м2
Комплектации домов
Каркас - Теплый контур
от 7 488 040 ₽
Стоимость без учёта крыльца, терассы, балкона, патио, навеса для автомобиля.

Проект

Архитектурный проект

Фундамент

Железобетонные забивные сваи 150х150х3000 мм. Составной ростверк из сухой строганой доски 45х145мм (3шт). Обработка огнебиозащитным составом

Несущие стены и перегородки

Стеновые панели изготовлены на заводе из сухого (12-18%) строганного бруса сечением 145х45мм,с наружной стороны зашиты ОСП плитой 9 мм. Весь силовой каркас и доборные элементы обработаны огнебиозащитным составом. Высота стеновых панелей 2,7 м. Утепление наружных стен 200 мм (150 мм + 50 мм перекрестно), межкомнатных перегородок 100 мм. Пароизоляция и ветро-гидрозащита

Перекрытия

Комплект параллельно-поясных ферм (пол 1-го этажа) изготовлен на заводе из сухого (12-18%) строганного бруса ,сечением 145х45мм, соединенного металлозубчатыми пластинами MITEK. Весь силовой каркас и доборные элементы обработаны огнебиозащитным составом. Утепление перекрытий 1-го этажа 250 мм базальтовым утеплителем, 2-го этажа 150 мм. Пароизоляция и ветро-гидрозащита

Кровля

Комплект ферм стропильной системы изготовлен на заводе из сухого (12-18%) строганного бруса, сечением 145*45 и 195х45мм согласно конструкторскому решению, соединенного металлозубчатыми пластинами MITEK. Весь силовой каркас и доборные элементы обработаны огнебиозащитным составом. Утепление потолка 2-го этажа 200 мм базальтовым утеплителем. Чердак холодный. Пароизоляция и ветро-гидрозащита. Обрешетка, контробрешетка. Металлочерепица толщиной 0,5 мм

Наружная отделка

Отделка фасада на выбор: фасадные панели Альта-профиль, Docke, металлосайдинг Grand Line, фасадная плитка Hauberk, декоративная штукатурка Ceresit. Свесы кровли- виниловые перфорированные софитные панели. Отделка цоколя панелями

Окна и двери

Окна-Rehau Grazio 70 мм с двухкамерными стеклопакетами. Отделка оконных наружных откосов, монтаж отливов. Дверь входная с терморазрывом

Внутренние коммуникации

Не входит в комплектацию

Внутренняя отделка

Не входит в комплектацию

Дополнительные элементы

Не входит в комплектацию

Организация строительной площадки

Доставка/вывоз строительной бытовки для проживания рабочих, биотуалета. Вывоз строительного мусора


Стоимость за м2
56 900 ₽
Получить консультацию
Каркас - Комфорт
от 9 856 840 ₽
Стоимость без учёта крыльца, терассы, балкона, патио, навеса для автомобиля.

Проект

Архитектурный проект

Фундамент

Железобетонные забивные сваи 150х150х3000 мм. Составной ростверк из сухой строганой доски 45х145мм (3шт). Обработка огнебиозащитным составом

Несущие стены и перегородки

Стеновые панели изготовлены на заводе из сухого (12-18%) строганного бруса сечением 145х45мм,с наружной стороны зашиты ОСП плитой 9 мм. Весь силовой каркас и доборные элементы обработаны огнебиозащитным составом. Высота стеновых панелей 2,7 м. Утепление наружных стен 200 мм (150 мм + 50 мм перекрестно), межкомнатных перегородок 100 мм. Пароизоляция и ветро-гидрозащита, проклейка швов скотчем

Перекрытия

Комплект параллельно-поясных ферм (пол 1-го этажа) изготовлен на заводе из сухого (12-18%) строганного бруса ,сечением 145х45мм, соединенного металлозубчатыми пластинами MITEK. Весь силовой каркас и доборные элементы обработаны огнебиозащитным составом. Утепление перекрытий 1-го этажа 250 мм базальтовым утеплителем, 2-го этажа 150 мм. Пароизоляция и ветро-гидрозащита, проклейка швов скотчем

Кровля

Комплект ферм стропильной системы изготовлен на заводе из сухого (12-18%) строганного бруса, сечением 145*45 и 195х45мм согласно конструкторскому решению, соединенного металлозубчатыми пластинами MITEK. Весь силовой каркас и доборные элементы обработаны огнебиозащитным составом. Утепление потолка 2-го этажа 200 мм базальтовым утеплителем. Чердак холодный. Пароизоляция и ветро-гидрозащита. Обрешетка, контробрешетка. Металлочерепица толщиной 0,5 мм

Наружная отделка

Отделка фасада на выбор: фасадные панели Альта-профиль, Docke, металлосайдинг Grand Line, фасадная плитка Hauberk, декоративная штукатурка Ceresit. Свесы кровли- виниловые перфорированные софитные панели. Отделка цоколя панелями

Окна и двери

Окна - Rehau Grazio 70 мм с двухкамерными стеклопакетами. Отделка оконных наружных откосов, монтаж отливов. Дверь входная с терморазрывом

Внутренние коммуникации

Устройство канализации: прокладка труб ПВХ диаметром 110 и 50 мм согласно план-схеме.

Устройство вентиляции во "влажных зонах": прокладка труб ПВХ , монтаж вентгрибков на кровле.

Устройство водоснабжения: прокладка труб из сшитого полиэтилена, монтаж водорозеток. Монтаж накопительного бойлера с обвязкой.

Устройство скрытой электрики: разводка кабеля по дому в гофре н/г (3*2,5 розетки,3*1,5 освещение), установка подрозетников. Сборка щитка с автоматами.

Устройство отопления: Подведение электрического кабеля к отопительным приборам, монтаж конвекторов

Внутренняя отделка

Монтаж по стенам ОСП 9 мм, ГКЛ 12,5 мм. В сан. узлах по стенам ВГКЛ, пол ЦСП

Дополнительные элементы

Водосточная система. Снегозадержатели. Чердачный утепленный люк FAKRO. Сетка от грызунов

Организация строительной площадки

Доставка/вывоз строительной бытовки для проживания рабочих, биотуалета. Вывоз строительного мусора


Стоимость за м2
74 900 ₽
Получить консультацию
Каркас - White Box
Цена по запросу
Стоимость без учёта крыльца, терассы, балкона, патио, навеса для автомобиля.

Проект

Архитектурный проект

Фундамент

Железобетонные забивные сваи 150х150х3000 мм. Составной ростверк из сухой строганой доски 45х145мм (3шт). Обработка огнебиозащитным составом

Несущие стены и перегородки

Стеновые панели изготовлены на заводе из сухого (12-18%) строганного бруса сечением 145х45мм,с наружной стороны зашиты ОСП плитой 9 мм. Весь силовой каркас и доборные элементы обработаны огнебиозащитным составом. Высота стеновых панелей 2,7 м. Утепление наружных стен 200 мм (150 мм + 50 мм перекрестно), межкомнатных перегородок 100 мм. Пароизоляция и ветро-гидрозащита, проклейка швов скотчем

Перекрытия

Комплект параллельно-поясных ферм (пол 1-го этажа) изготовлен на заводе из сухого (12-18%) строганного бруса ,сечением 145х45мм, соединенного металлозубчатыми пластинами MITEK. Весь силовой каркас и доборные элементы обработаны огнебиозащитным составом. Утепление перекрытий 1-го этажа 250 мм базальтовым утеплителем, 2-го этажа 150 мм. Пароизоляция и ветро-гидрозащита, проклейка швов скотчем

Кровля

Комплект ферм стропильной системы изготовлен на заводе из сухого (12-18%) строганного бруса, сечением 145*45 и 195х45мм согласно конструкторскому решению, соединенного металлозубчатыми пластинами MITEK. Весь силовой каркас и доборные элементы обработаны огнебиозащитным составом. Утепление потолка 2-го этажа 200 мм базальтовым утеплителем. Чердак холодный. Пароизоляция и ветро-гидрозащита. Обрешетка, контробрешетка. Металлочерепица толщиной 0,5 мм

Наружная отделка

Отделка фасада на выбор: фасадные панели Альта-профиль, Docke, металлосайдинг Grand Line, фасадная плитка Hauberk, декоративная штукатурка Ceresit. Свесы кровли- виниловые перфорированные софитные панели. Отделка цоколя панелями

Окна и двери

Окна - Rehau Grazio 70  мм с двухкамерными стеклопакетами. Отделка оконных наружных откосов, монтаж отливов. Дверь входная с терморазрывом

Внутренние коммуникации

Устройство канализации: прокладка труб ПВХ диаметром 110 и 50 мм согласно план-схеме.

Устройство вентиляции во "влажных зонах": прокладка труб ПВХ , монтаж вентгрибков.

Устройство водоснабжения: прокладка труб из сшитого полиэтилена, монтаж водорозеток. Монтаж бойлера косвенного нагрева с обвязкой.

Устройство скрытой электрики: разводка кабеля по дому в гофре н/г (3*2,5 розетки,3*1,5 освещение), установка подрозетников, розеток и выключателей. Сборка щитка с автоматами.

Устройство отопления: Монтаж водяного теплого пола на 1-м этаже: укладка теплоизоляционных матов, прокладка труб из сшитого полиэтилена, устройство коллекторной группы, полусухой бетонной стяжки, монтаж радиаторов на втором этаже (при наличии), установка котла газового или электрического, обвязка котельной, пуско-наладочные работы

Внутренняя отделка

Монтаж по стенам ОСП 9 мм, ГКЛ 12,5 мм, шпатлевка стен в 2 слоя под обои (или монтаж имитации бруса с заводской покраской).

В сан. узлах по стенам ВГКЛ, пол ЦСП.

Монтаж ПВХ откосов и подоконников

Дополнительные элементы

Водосточная система. Снегозадержатели. Чердачный утепленный люк FAKRO . Сетка от грызунов

Организация строительной площадки

Доставка/вывоз строительной бытовки для проживания рабочих, биотуалета. Вывоз строительного мусора


Ипотека
Живите сейчас, платите потом!

Не откладываете мечту о собственном доме на завтра!

  • Участок и дом в одну ипотеку. Ставка
    от 6%.
  • Первоначальный взнос от 20,1%.
  • Работаем с эскроу счетами.
  • Персональный менеджер.
  • Бесплатное сопровождение.
  • Высокий процент одобрения от известных банков-партнёров и быстрый выход на сделку.
Получить ипотеку
Росбанк" Газпромбанк" Альфа-Банк" ВТБ" Хаус-Банк" Сбербанк"
Канадская технология Mitek
MiTek

Канадская технология Mitek: компьютерное проектирование и заводское изготовление каркасных конструкций и деревянных стропильных ферм, соединённых в узлах металлическими зубчатыми пластинами. Перекрытия, стеновые панели и стропильные фермы выполнены из сухой строганой древесины и обработаны огнебиозащитным составом в заводских условиях.

Узнать больше
Стеновые панели
MITEK
  • Быстрый монтаж
  • Удобство разводки внутренних коммуникаций
  • Двутавровое усиление оконных проёмов
  • Усиленная нижняя и верхняя обвязка
  • Усиленная нижняя и верхняя обвязка
  • Монтаж шип-паз
  • Тёплый угол
Перекрытия-параллельно - поясные фермы MITEK:
  • Перекрывают пролёты до 9 метров без дополнительной опоры. Отсутствует палубность
  • Детали ферм скреплены между собой металлозубчатыми пластинами
  • Выдерживают нагрузку до 1 200 кг на метр
Стропильные фермы
MITEK:
  • Нагрузки просчитаны с помощью программы Mitek
  • Изготавливаются с высокой степенью точности на заводе
  • Легко адаптируются к разным архитектурным решениям
Строительство Mitek
Двухэтажный дом от БЕЛХАУС/BELHOUSE | Отзыв
Каркасные дома по технологии MITEK
Индивидуальное проектирование

Архитекторы компании «Белхаус» создадут для вас индивидуальный проект согласно вашим пожеланиям.

Записаться к архитектору
Внутренняя и внешняя отделка
Имитация бруса

Отделочный материал в виде тонких строганных досок с выраженными скошенными гранями (фасками) и соединением «шип-паз». Универсальный материал для внутренней отделки каркасных домов в эко-стиле, отражает фактуру профилированного бруса.

Гипсокартон

Предначен для отделки стен в помещениях с сухим и нормальным влажностным режимом, позволяет получить ровные стены для нанесения шпатлевки и последующей покраски. ГКЛ состоит из гипсового сердечника, оклеенного с двух сторон прессованным картоном

Металлосайдинг

Современный материал для фасадной отделки дома, представляющий собой профилированные панели из оцинкованной стали с полимерным покрытием. Имеет широкий ассортимент профилей в виде вертикальных и горизонтальных панелей, имитирующих доску, бревно или брус.

Фасадные панели

Прямоугольные плиты из полипропилена,изготовленные методом литья под давлением, усиленные ребрами жесткости, используются для внешней отделки дома. Их внешний вид имитирует фактуру и цвета натуральных материалов, например камень, кирпич, песчаник или сланец.

Силикатно-силиконовая штукатурка

Предназначена для декоративной фасадной отделки каменных и каркасных домов. Обладает высокой эластичностью, не растрескивается, не осыпается, влагостойкая и паропроницаемая. Образует покрытие в виде плотно уложенной каменной крошки.Самоочищающаяся поверхность снижает загрязнение фасада, а широкий выбор оттенков позволяет создать стильный экстерьер.

Авторские видео домов
Белхаус на карте Котельников — Яндекс Карты

Барнхаус, проект №299

Проект одноэтажного каркасного дома общей площадью 131.6 кв. м представляет собой современное и уютное жилье, идеально подходящее для комфортной семейной жизни. Общая площадь включает жилую площадь 116,5 кв. м, которая разделена на просторную кухню-гостиную и две уютные спальни. Два санузла обеспечивают удобство и функциональность. Важным элементом проекта является наличие гаража, обеспечивающего безопасное хранение автомобиля и дополнительное пространство для хозяйственных нужд. Архитектурное решение сочетает в себе современные тенденции и практичность, делая этот дом идеальным выбором для семей, ценящих комфорт и стиль.

Как мы работаем?
1
Оформляете заявку
2
Предлагаем варианты
3
Составляем смету
4
Заключаем договор
5
Вносите предоплату
6
Строим дом под ключ
Похожие проекты
Записаться на экскурсию на строительную площадку
Заполните форму, представленную справа и мы свяжемся с вами для согласования времени посещения строительной площадки
20+ лет
на рынке СНГ
Собственное фабричное производство
Решим вопрос с ипотекой
Лояльные цены
от 29.000 ₽/м
{block_personal_project_popup}
ежедневно | 10:00 — 19:00
14-й км МКАД, Мега «Белая Дача», ВЦ «Малоэтажная страна» дом №22. Компания «Belhouse»
МО, г.о. Мытищи, пос. Вёшки, ТПЗ Алтуфьево, 3В ВЦ «Малоэтажная страна» дом №18
Обратный звонок
Напишите нам
Хотите такой дом?

Оставьте свои данные, и мы с вами свяжемся.

Хотите купить такой дом в кредит?

Оставьте свои данные, и мы с вами свяжемся.

Подберите свой проект