Top.Mail.Ru
20+ лет
на рынке СНГ
Собственное фабричное производство
Решим вопрос с ипотекой
Лояльные цены
от 29.000 ₽/м

Дом из газобетона, проект №190к

Главная Дома из газобетона Дома из газобетона Дом из газобетона, проект №190к
Площадь теплого контура 140.2 м2
Жилая площадь 115.8 м2
Размер дома 11x12 м
Комнаты 5
Спальни 4
Санузлы 2
Дополнительно Терраса
Стоимость строительства от 8 257 780 ₽ В зависимости от комплектации
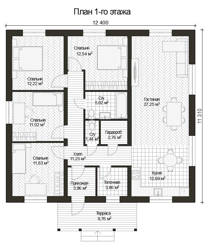
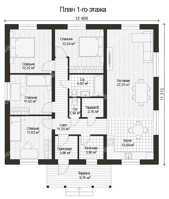
Планировка
Гостиная 28.44 м2
Кухня 12.87 м2
Спальня 13.07 м2
Спальня 12.93 м2
Спальня 11.45 м2
Спальня 11.39 м2
Тамбур 3.84 м2
Топочная 3.78 м2
Холл 10.84 м2
Гардероб 2.43 м2
Санузел 4.64 м2
Крыльцо 9.78 м2
Комплектации домов
Газобетон - Теплый контур
от 8 257 780 ₽
Стоимость без учёта крыльца, терассы, балкона, патио, навеса для автомобиля.

Проект

Архитектурный проект

Фундамент

Монолитная фундаментная плита 300 мм (бетон М-300) с двуслойным армированием арматурой 12 мм, утепление пенополистиролом

Несущие стены и перегородки

Кладка наружных стен из газобетонного блока Bonolit 400 мм, внутренних несущих стен 250 мм, внутренних перегородок из 100 мм, армирование каждый 4-й ряд. Устройство армопояса из бетона М300 с применением арматуры диаметром 12 мм

Перекрытия

Монтаж железобетонных плит перекрытия 220 мм

Кровля

Комплект ферм стропильной системы изготовлен на заводе из сухого (12-18%) строганного бруса, сечением 145*45 и 195х45мм согласно конструкторскому решению, соединенного металлозубчатыми пластинами MITEK. Весь силовой каркас и доборные элементы обработаны огнебиозащитным составом. Утепление потолка 2-го этажа 200 мм базальтовым утеплителем. Чердак холодный. Пароизоляция и ветро-гидрозащита. Обрешетка, контробрешетка. Металлочерепица толщиной 0,5 мм

Наружная отделка

Не входит в комплектацию

Окна и двери

Окна - Rehau Grazio 70 мм с двухкамерными стеклопакетами. Дверь входная с терморазрывом

Внутренние коммуникации

Не входит в комплектацию

Внутренняя отделка

Не входит в комплектацию

Дополнительные элементы

Не входит в комплектацию

Организация строительной площадки

Доставка/вывоз строительной бытовки для проживания рабочих, биотуалета. Вывоз строительного мусора


Стоимость за м2
58 900 ₽
Получить консультацию
Газобетон - White Box
Цена по запросу
Стоимость без учёта крыльца, терассы, балкона, патио, навеса для автомобиля.

Проект

Архитектурный проект

Фундамент

Монолитная фундаментная плита 300 мм (бетон М-300) с двуслойным армированием арматурой 12 мм, утепление пенополистиролом

Несущие стены и перегородки

Кладка наружных стен из газобетонного блока Bonolit 400 мм, внутренних несущих стен 250 мм, внутренних перегородок из 100 мм, армирование каждый 4-й ряд. Устройство армопояса  из бетона М300 с применением арматуры диаметром 12 мм

Перекрытия

Монтаж железобетонных плит перекрытия 220 мм

Кровля

Комплект ферм стропильной системы изготовлен на заводе из сухого (12-18%) строганного бруса, сечением 145*45 и 195х45мм согласно конструкторскому решению, соединенного металлозубчатыми пластинами MITEK. Весь силовой каркас и доборные элементы обработаны огнебиозащитным составом. Утепление потолка 2-го этажа 200 мм базальтовым утеплителем. Чердак холодный. Пароизоляция и ветро-гидрозащита. Обрешетка, контробрешетка. Металлочерепица толщиной 0,5 мм

Наружная отделка

Декоративная силикатно-силиконовая штукатурка Ceresit. Свесы кровли- виниловые перфорированные софитные панели

Окна и двери

Окна - Rehau Grazio 70 мм с двухкамерными стеклопакетами.Установка отливов. Дверь входная с терморазрывом

Внутренние коммуникации

Устройство канализации: прокладка труб ПВХ диаметром 110 и 50 мм согласно план-схеме.

Устройство вентиляции во "влажных зонах": прокладка труб ПВХ , монтаж вентгрибков.

Устройство водоснабжения: прокладка труб из сшитого полиэтилена, монтаж водорозеток. Монтаж бойлера косвенного нагрева с обвязкой.

Устройство скрытой электрики: разводка кабеля по дому в гофре н/г (3*2,5 розетки,3*1,5 освещение), установка подрозетников, розеток и выключателей. Сборка щитка с автоматами.

Устройство отопления: Монтаж водяного теплого пола на 1-м этаже: укладка теплоизоляционных матов, прокладка труб из сшитого полиэтилена, устройство коллекторной группы, полусухой бетонной стяжки, монтаж радиаторов на втором этаже (при наличии), установка котла газового или электрического, обвязка котельной, пуско-наладочные работы

Внутренняя отделка

Нанесение гипсовой штукатурки по маякам, шпатлевка стен в 2 слоя «под обои»

Дополнительные элементы

Водосточная система. Снегозадержатели. Чердачный утепленный люк FAKRO

Организация строительной площадки

Доставка/вывоз строительной бытовки для проживания рабочих, биотуалета. Вывоз строительного мусора


Ипотека
Живите сейчас, платите потом!

Не откладываете мечту о собственном доме на завтра!

  • Участок и дом в одну ипотеку. Ставка
    от 6%.
  • Первоначальный взнос от 20,1%.
  • Работаем с эскроу счетами.
  • Персональный менеджер.
  • Бесплатное сопровождение.
  • Высокий процент одобрения от известных банков-партнёров и быстрый выход на сделку.
Получить ипотеку
Росбанк" Газпромбанк" Альфа-Банк" ВТБ" Хаус-Банк" Сбербанк"
Канадская технология Mitek
MiTek

Канадская технология Mitek: компьютерное проектирование и заводское изготовление каркасных конструкций и деревянных стропильных ферм, соединённых в узлах металлическими зубчатыми пластинами. Перекрытия, стеновые панели и стропильные фермы выполнены из сухой строганой древесины и обработаны огнебиозащитным составом в заводских условиях.

Узнать больше
Стеновые панели
MITEK
  • Быстрый монтаж
  • Удобство разводки внутренних коммуникаций
  • Двутавровое усиление оконных проёмов
  • Усиленная нижняя и верхняя обвязка
  • Усиленная нижняя и верхняя обвязка
  • Монтаж шип-паз
  • Тёплый угол
Перекрытия-параллельно - поясные фермы MITEK:
  • Перекрывают пролёты до 9 метров без дополнительной опоры. Отсутствует палубность
  • Детали ферм скреплены между собой металлозубчатыми пластинами
  • Выдерживают нагрузку до 1 200 кг на метр
Стропильные фермы
MITEK:
  • Нагрузки просчитаны с помощью программы Mitek
  • Изготавливаются с высокой степенью точности на заводе
  • Легко адаптируются к разным архитектурным решениям
Строительство Mitek
Двухэтажный дом от БЕЛХАУС/BELHOUSE | Отзыв
Каркасные дома по технологии MITEK
Индивидуальное проектирование

Архитекторы компании «Белхаус» создадут для вас индивидуальный проект согласно вашим пожеланиям.

Записаться к архитектору
Внутренняя и внешняя отделка
Имитация бруса

Отделочный материал в виде тонких строганных досок с выраженными скошенными гранями (фасками) и соединением «шип-паз». Универсальный материал для внутренней отделки каркасных домов в эко-стиле, отражает фактуру профилированного бруса.

Гипсокартон

Предначен для отделки стен в помещениях с сухим и нормальным влажностным режимом, позволяет получить ровные стены для нанесения шпатлевки и последующей покраски. ГКЛ состоит из гипсового сердечника, оклеенного с двух сторон прессованным картоном

Металлосайдинг

Современный материал для фасадной отделки дома, представляющий собой профилированные панели из оцинкованной стали с полимерным покрытием. Имеет широкий ассортимент профилей в виде вертикальных и горизонтальных панелей, имитирующих доску, бревно или брус.

Фасадные панели

Прямоугольные плиты из полипропилена,изготовленные методом литья под давлением, усиленные ребрами жесткости, используются для внешней отделки дома. Их внешний вид имитирует фактуру и цвета натуральных материалов, например камень, кирпич, песчаник или сланец.

Силикатно-силиконовая штукатурка

Предназначена для декоративной фасадной отделки каменных и каркасных домов. Обладает высокой эластичностью, не растрескивается, не осыпается, влагостойкая и паропроницаемая. Образует покрытие в виде плотно уложенной каменной крошки.Самоочищающаяся поверхность снижает загрязнение фасада, а широкий выбор оттенков позволяет создать стильный экстерьер.

Авторские видео домов
Белхаус на карте Котельников — Яндекс Карты

Уютный и просторный дом из газобетона по проекту №190 имеет общую площадь 126,6 квадратных метров и прекрасно подходит как для постоянного проживания, так и для отдыха большой компании. В планировке дома предусмотрены: четыре спальни, туалет, совмещенный санузел, тамбур, просторный холл, топочная, большое крытое крыльцо-терраса, кухня и гостиная-столовая.

Чтобы заказать дом по этому проекту или внести в него изменения, вы можете отправить нам заявку онлайн или напрямую связаться с нашим менеджером по телефону.

Как мы работаем?
1
Оформляете заявку
2
Предлагаем варианты
3
Составляем смету
4
Заключаем договор
5
Вносите предоплату
6
Строим дом под ключ
Похожие проекты
Записаться на экскурсию на строительную площадку
Заполните форму, представленную справа и мы свяжемся с вами для согласования времени посещения строительной площадки
20+ лет
на рынке СНГ
Собственное фабричное производство
Решим вопрос с ипотекой
Лояльные цены
от 29.000 ₽/м
{block_personal_project_popup}
ежедневно | 10:00 — 19:00
14-й км МКАД, Мега «Белая Дача», ВЦ «Малоэтажная страна» дом №22. Компания «Belhouse»
МО, г.о. Мытищи, пос. Вёшки, ТПЗ Алтуфьево, 3В ВЦ «Малоэтажная страна» дом №18
Обратный звонок
Напишите нам
Хотите такой дом?

Оставьте свои данные, и мы с вами свяжемся.

Хотите купить такой дом в кредит?

Оставьте свои данные, и мы с вами свяжемся.

Подберите свой проект