Top.Mail.Ru
20+ лет
на рынке СНГ
Собственное фабричное производство
Решим вопрос с ипотекой
Лояльные цены
от 29.000 ₽/м

Дом из газобетона, проект №383к

Главная Дома из газобетона Дома из газобетона Дом из газобетона, проект №383к
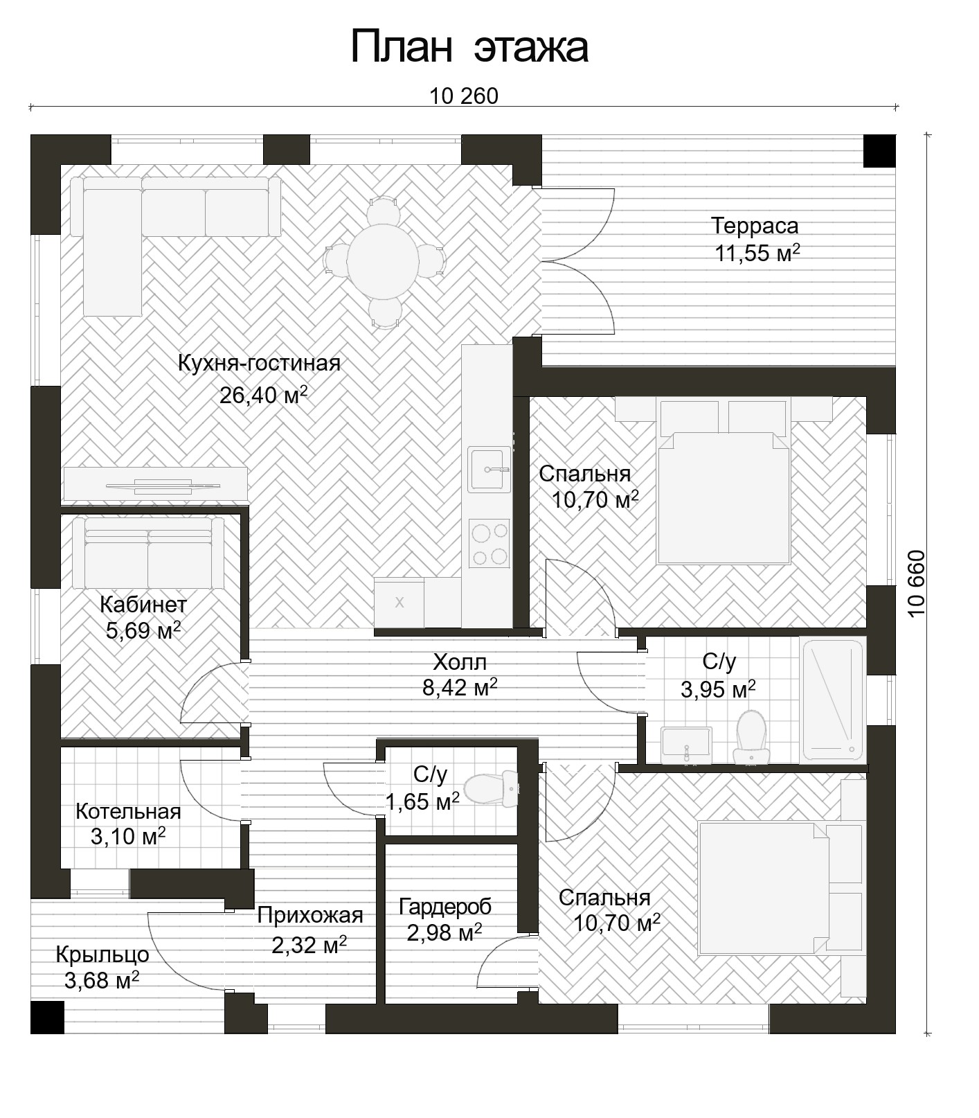
Площадь теплого контура 94.2 м2
Жилая площадь 75.6 м2
Размер дома 10x10 м
Спальни 3
Санузлы 2
Дополнительно Терраса
Стоимость строительства от 6 104 160 ₽ В зависимости от комплектации
Планировка
Комплектации домов
Газобетон - Теплый контур
от 6 104 160 ₽
Стоимость без учёта крыльца, терассы, балкона, патио, навеса для автомобиля.

Проект

Архитектурный проект

Фундамент

Монолитная фундаментная плита 300 мм (бетон М-300) с двуслойным армированием арматурой 12 мм, утепление пенополистиролом

Несущие стены и перегородки

Кладка наружных стен из газобетонного блока Bonolit 400 мм, внутренних несущих стен 250 мм, внутренних перегородок из 100 мм, армирование каждый 4-й ряд. Устройство армопояса из бетона М300 с применением арматуры диаметром 12 мм

Перекрытия

Монтаж железобетонных плит перекрытия 220 мм

Кровля

Комплект ферм стропильной системы изготовлен на заводе из сухого (12-18%) строганного бруса, сечением 145*45 и 195х45мм согласно конструкторскому решению, соединенного металлозубчатыми пластинами MITEK. Весь силовой каркас и доборные элементы обработаны огнебиозащитным составом. Утепление потолка 2-го этажа 200 мм базальтовым утеплителем. Чердак холодный. Пароизоляция и ветро-гидрозащита. Обрешетка, контробрешетка. Металлочерепица толщиной 0,5 мм

Наружная отделка

Не входит в комплектацию

Окна и двери

Окна - Rehau Grazio 70 мм с двухкамерными стеклопакетами. Дверь входная с терморазрывом

Внутренние коммуникации

Не входит в комплектацию

Внутренняя отделка

Не входит в комплектацию

Дополнительные элементы

Не входит в комплектацию

Организация строительной площадки

Доставка/вывоз строительной бытовки для проживания рабочих, биотуалета. Вывоз строительного мусора


Стоимость за м2
64 800 ₽
Получить консультацию
Газобетон - White Box
Цена по запросу
Стоимость без учёта крыльца, терассы, балкона, патио, навеса для автомобиля.

Проект

Архитектурный проект

Фундамент

Монолитная фундаментная плита 300 мм (бетон М-300) с двуслойным армированием арматурой 12 мм, утепление пенополистиролом

Несущие стены и перегородки

Кладка наружных стен из газобетонного блока Bonolit 400 мм, внутренних несущих стен 250 мм, внутренних перегородок из 100 мм, армирование каждый 4-й ряд. Устройство армопояса  из бетона М300 с применением арматуры диаметром 12 мм

Перекрытия

Монтаж железобетонных плит перекрытия 220 мм

Кровля

Комплект ферм стропильной системы изготовлен на заводе из сухого (12-18%) строганного бруса, сечением 145*45 и 195х45мм согласно конструкторскому решению, соединенного металлозубчатыми пластинами MITEK. Весь силовой каркас и доборные элементы обработаны огнебиозащитным составом. Утепление потолка 2-го этажа 200 мм базальтовым утеплителем. Чердак холодный. Пароизоляция и ветро-гидрозащита. Обрешетка, контробрешетка. Металлочерепица толщиной 0,5 мм

Наружная отделка

Декоративная силикатно-силиконовая штукатурка Ceresit. Свесы кровли- виниловые перфорированные софитные панели

Окна и двери

Окна - Rehau Grazio 70 мм с двухкамерными стеклопакетами.Установка отливов. Дверь входная с терморазрывом

Внутренние коммуникации

Устройство канализации: прокладка труб ПВХ диаметром 110 и 50 мм согласно план-схеме.

Устройство вентиляции во "влажных зонах": прокладка труб ПВХ , монтаж вентгрибков.

Устройство водоснабжения: прокладка труб из сшитого полиэтилена, монтаж водорозеток. Монтаж бойлера косвенного нагрева с обвязкой.

Устройство скрытой электрики: разводка кабеля по дому в гофре н/г (3*2,5 розетки,3*1,5 освещение), установка подрозетников, розеток и выключателей. Сборка щитка с автоматами.

Устройство отопления: Монтаж водяного теплого пола на 1-м этаже: укладка теплоизоляционных матов, прокладка труб из сшитого полиэтилена, устройство коллекторной группы, полусухой бетонной стяжки, монтаж радиаторов на втором этаже (при наличии), установка котла газового или электрического, обвязка котельной, пуско-наладочные работы

Внутренняя отделка

Нанесение гипсовой штукатурки по маякам, шпатлевка стен в 2 слоя «под обои»

Дополнительные элементы

Водосточная система. Снегозадержатели. Чердачный утепленный люк FAKRO

Организация строительной площадки

Доставка/вывоз строительной бытовки для проживания рабочих, биотуалета. Вывоз строительного мусора


Ипотека
Живите сейчас, платите потом!

Не откладываете мечту о собственном доме на завтра!

  • Участок и дом в одну ипотеку. Ставка
    от 6%.
  • Первоначальный взнос от 20,1%.
  • Работаем с эскроу счетами.
  • Персональный менеджер.
  • Бесплатное сопровождение.
  • Высокий процент одобрения от известных банков-партнёров и быстрый выход на сделку.
Получить ипотеку
Росбанк" Газпромбанк" Альфа-Банк" ВТБ" Хаус-Банк" Сбербанк"
Канадская технология Mitek
MiTek

Канадская технология Mitek: компьютерное проектирование и заводское изготовление каркасных конструкций и деревянных стропильных ферм, соединённых в узлах металлическими зубчатыми пластинами. Перекрытия, стеновые панели и стропильные фермы выполнены из сухой строганой древесины и обработаны огнебиозащитным составом в заводских условиях.

Узнать больше
Стеновые панели
MITEK
  • Быстрый монтаж
  • Удобство разводки внутренних коммуникаций
  • Двутавровое усиление оконных проёмов
  • Усиленная нижняя и верхняя обвязка
  • Усиленная нижняя и верхняя обвязка
  • Монтаж шип-паз
  • Тёплый угол
Перекрытия-параллельно - поясные фермы MITEK:
  • Перекрывают пролёты до 9 метров без дополнительной опоры. Отсутствует палубность
  • Детали ферм скреплены между собой металлозубчатыми пластинами
  • Выдерживают нагрузку до 1 200 кг на метр
Стропильные фермы
MITEK:
  • Нагрузки просчитаны с помощью программы Mitek
  • Изготавливаются с высокой степенью точности на заводе
  • Легко адаптируются к разным архитектурным решениям
Строительство Mitek
Двухэтажный дом от БЕЛХАУС/BELHOUSE | Отзыв
Каркасные дома по технологии MITEK
Индивидуальное проектирование

Архитекторы компании «Белхаус» создадут для вас индивидуальный проект согласно вашим пожеланиям.

Записаться к архитектору
Внутренняя и внешняя отделка
Имитация бруса

Отделочный материал в виде тонких строганных досок с выраженными скошенными гранями (фасками) и соединением «шип-паз». Универсальный материал для внутренней отделки каркасных домов в эко-стиле, отражает фактуру профилированного бруса.

Гипсокартон

Предначен для отделки стен в помещениях с сухим и нормальным влажностным режимом, позволяет получить ровные стены для нанесения шпатлевки и последующей покраски. ГКЛ состоит из гипсового сердечника, оклеенного с двух сторон прессованным картоном

Металлосайдинг

Современный материал для фасадной отделки дома, представляющий собой профилированные панели из оцинкованной стали с полимерным покрытием. Имеет широкий ассортимент профилей в виде вертикальных и горизонтальных панелей, имитирующих доску, бревно или брус.

Фасадные панели

Прямоугольные плиты из полипропилена,изготовленные методом литья под давлением, усиленные ребрами жесткости, используются для внешней отделки дома. Их внешний вид имитирует фактуру и цвета натуральных материалов, например камень, кирпич, песчаник или сланец.

Силикатно-силиконовая штукатурка

Предназначена для декоративной фасадной отделки каменных и каркасных домов. Обладает высокой эластичностью, не растрескивается, не осыпается, влагостойкая и паропроницаемая. Образует покрытие в виде плотно уложенной каменной крошки.Самоочищающаяся поверхность снижает загрязнение фасада, а широкий выбор оттенков позволяет создать стильный экстерьер.

Авторские видео домов
Как мы работаем?
1
Оформляете заявку
2
Предлагаем варианты
3
Составляем смету
4
Заключаем договор
5
Вносите предоплату
6
Строим дом под ключ
Похожие проекты
Записаться на экскурсию на строительную площадку
Заполните форму, представленную справа и мы свяжемся с вами для согласования времени посещения строительной площадки
20+ лет
на рынке СНГ
Собственное фабричное производство
Решим вопрос с ипотекой
Лояльные цены
от 29.000 ₽/м
{block_personal_project_popup}
ежедневно | 10:00 — 19:00
Центральный федеральный округ, Московская область, городской округ Котельники, Котельники, Дзержинское шоссе, вл7/7
МО, г.о. Мытищи, пос. Вёшки, ТПЗ Алтуфьево, 3В ВЦ «Малоэтажная страна» дом №18
Обратный звонок
Напишите нам
Хотите такой дом?

Оставьте свои данные, и мы с вами свяжемся.

Хотите купить такой дом в кредит?

Оставьте свои данные, и мы с вами свяжемся.

Подберите свой проект