Top.Mail.Ru
20+ лет
на рынке СНГ
Собственное фабричное производство
Решим вопрос с ипотекой
Лояльные цены
от 29.000 ₽/м

Домодедовский район

Главная Строим сейчас Домодедовский район
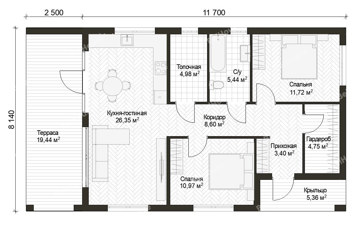
Описание проекта
Фундамент Этап строительства: 2 из 7
Фотографии со стройки Ход строительства
1
Проект Завершено
2
Фундамент В процессе
3
Первый этаж Не начато
4
Второй этаж Не начато
5
Кровля Не начато
6
Окна / Двери Не начато
7
Фасад Не начато
Похожие проекты

Мы можем построить для Вас как типовой, так и индивидуальный каркасный дом любой сложности.

20+ лет
на рынке СНГ
Собственное фабричное производство
Решим вопрос с ипотекой
Лояльные цены
от 29.000 ₽/м
{block_personal_project_popup}
ежедневно | 10:00 — 19:00
14-й км МКАД, Мега «Белая Дача», ВЦ «Малоэтажная страна» дом №22. Компания «Belhouse»
МО, г.о. Мытищи, пос. Вёшки, ТПЗ Алтуфьево, 3В ВЦ «Малоэтажная страна» дом №18
Обратный звонок
Напишите нам
Хотите такой дом?

Оставьте свои данные, и мы с вами свяжемся.

Хотите купить такой дом в кредит?

Оставьте свои данные, и мы с вами свяжемся.

Подберите свой проект